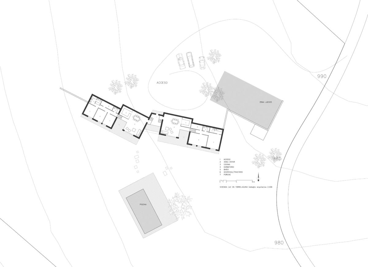
Finca Los Tomillares, 28180 Torrelaguna gebaute Fläche: 252m2 Vorentwurf: 2006
2×1 Haus ist ein Entwurf für zwei befreundete Paare, die gemeinsam ein 20 000m2 großes Grundstück etwa 60km nördlich von Madrid gekauft hatten. Das Gelände ist rau und von Buschwerk bewachsen, charakteristisch im Frühling der durchdringende Duft der Sonnenröschen. Das Grundstück fällt nach Südosten leicht ab und bietet einen atemberaubenden Blick auf die Berge und auf die Stadt Madrid in der Ferne.
Die beiden Kernpunkte des Projekts schienen uns in der Wahrung der Intimität und des räumlichen Gleichgewichts der beiden Haushälften einerseits, und in der Gliederung und Abgrenzung der Aussenbereiche, der Erschliessung und der Bebauungslinien andererseits zu liegen.
Die Dimension des Grundstücks lädt dazu ein, das relativ kleine bauliche Volumen auseinander zu ziehen, um definierte und geschützte Aussenräume zu schaffen. Das Raumprogramm forderte völlige Unabhängigkeit der beiden Wohneinheiten bei gleichzeitiger Überlappung der Eingangsbereiche und Schaffung von Gemeinschaftsflächen.
Das brachte uns auf die Idee, eine Art Rückgrat zu schaffen, ein lineares Verbindungselement, an dem die Räume nach Bedarf angegliedert werden, und das dem natürlichen Gefälle von Osten nach Westen folgt.