Site Overlay

Drei Wohnungs Umbauten

Calle Almirante, 28004 Madrid
In einem historischen Wohnhaus im Zentrum Madrids wurde im Laufe mehrerer Jahre der Umbau dreier untereinander liegender und fast identischer Wohnungen mit je ca. 130m2 von den jeweiligen Eigentümern in Auftrag gegeben. In allen drei Fällen war das zentrale Thema eine komplette Neuordnung der Räume. Küche und Bäder wurden in der Mitte zusammenfasst und die Wohn- und Schlafräume in einer natürlichen Abfolge angelegt, die es ermöglicht, die Verbindungsgänge weitgehend zu eliminieren.
Die hisorischen Elemente an Fassade und Innenräumen werden erhalten und mit einem modernen Raumkonzept und neutralen Oberflächen kontrastiert.
distribución anterior a reforma
distribución anterior a reforma
3ºB distribución anterior a reforma
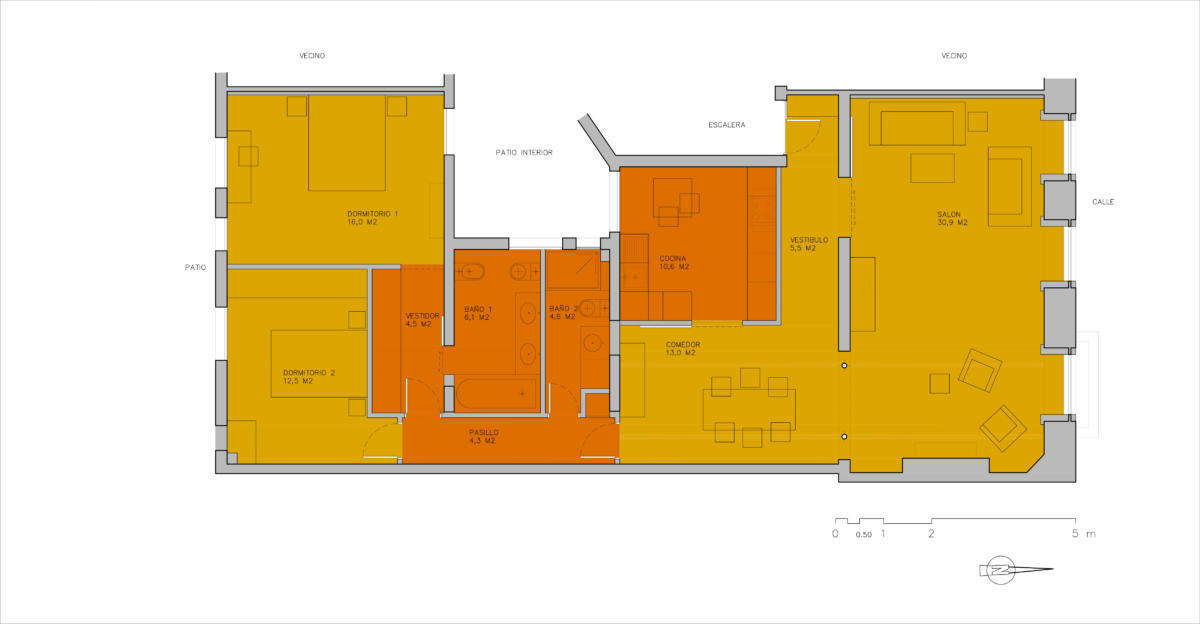
estado reformado
estado reformado
3ºB estado reformado
distribución anterior a reforma
distribución anterior a reforma
2ºB distribución anterior a reforma
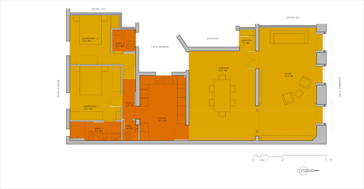
estado reformado
estado reformado
2ºB estado reformado
distribución anterior a reforma
distribución anterior a reforma
1ºB distribución anterior a reforma
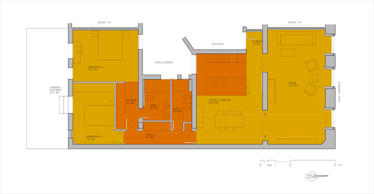
estado reformado
estado reformado
1ºB estado reformado