Urbanización Santo Domingo, 28110 Algete Co-Autor: Miguel Cabeza gebaute Fläche gesamt: 493m2 Ausführungsplanung: 2007
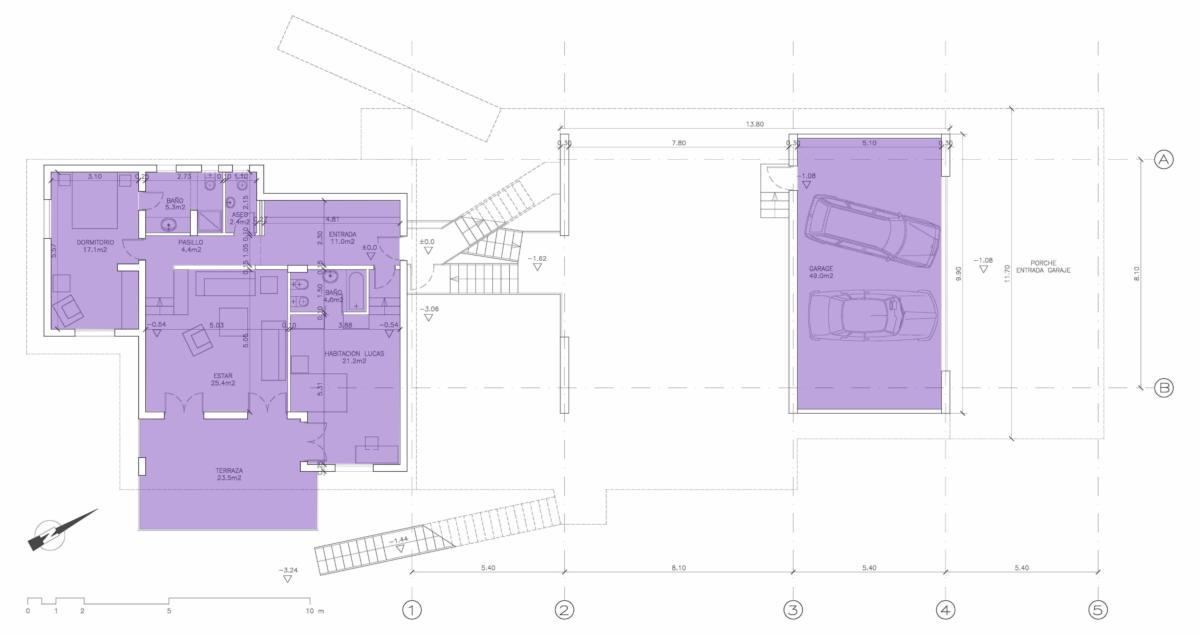
Der Ausgangspunkt für das Projekt war ein existierendes Einfamilienhaus mit ca. 200m2 Größe, dessen sehr konventionell gestaltetes Volumen sich schlecht für eine Erweiterung eignete, auf Wunsch des Bauherrn aber erhalten bleiben sollte. Wir kamen daher zu der Entscheidung, ein neues Haus daneben zu errichten und die beiden ungleichen Einheiten mithilfe eines verbindenden Elements zu vereinen. Es wurde eine Art gefaltete Plattform entworfen, die Basis und Körper des neuen Gebäudes formt und über dam alten Haus eine Terrasse bildet, um das Satteldach zu ersetzen. Im Einklang mit den Bedürfnissen der Familie wurde das Raumprogramm in drei Einheiten unterteilt, die den drei Generationen von Bewohnern gleichzeitig Unabhängigkeit und Zusammenhalt bieten sollen. Als Folge unerwarteter Änderungen in der Familienstruktur verzögerte sich die Ausführung des Projekts und wurde letztlich 2009 in einer reduzierten Form gebaut.